Institute of Architectural & Environmental Design.

IAED建筑环境设计的业务以住宅,居住环境规划居多.由室内空间延伸至景观,扩展至城市空间,是以整体性居住环境为主题的综合规划、设计企业.

n-Company dormitory competition     

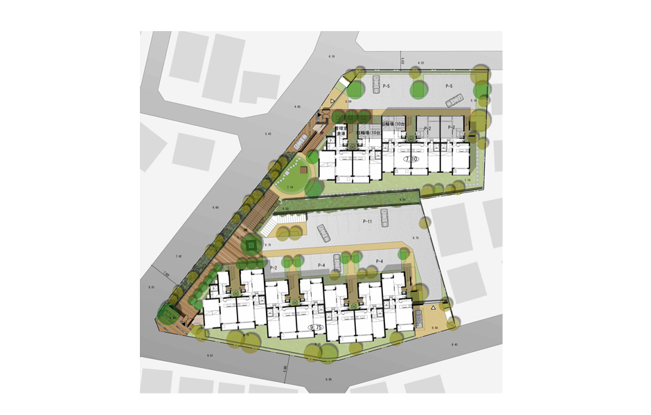
位于小区内某公司家属宿舍的设计方案,考虑以融合周边环境的一户建为主,在建筑体量上,设置为分节雁行,并采用斜面屋顶。对1层与2、3层的色调、材质方面都做出了调整,实现缩小规模,调和与周边环境的目的。